about about about
Cozinha

Por que escolher a cozinha em container?

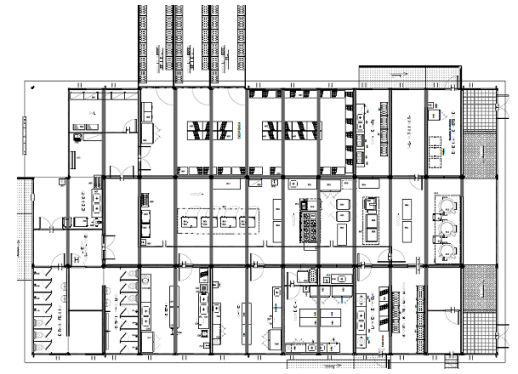
A cozinha em container é uma ótima alternativa para diversos propósitos, desde cozinhas industriais provisórias até estruturas definitivas com todos os recursos necessários para uma operação adequada. Fornecemos e observamos todos os pontos cruciais para um perfeito funcionamento.

Do projeto à instalação: sua cozinha em container pronta para sua operação.

Fale Conosco
VANTAGENS

Vantagens da cozinha em container

São diversos os benefícios de contar com uma cozinha em container, seja para eventos e demais atividades. A Rental Solution lhe oferece as mais completas soluções do mercado.

Fale Conosco

Containers são projetados para serem facilmente transportados e relocados. Isso permite que posicionemos a cozinha onde for necessário, seja para atender a um evento específico ou para acompanhar o crescimento do seu negócio em diferentes localizações.

Containers modulares já estão pré-fabricados e podem ser rapidamente mobilizados. Isso reduz significativamente o tempo de construção e os custos associados à construção tradicional.

Containers oferecem uma solução compacta para a instalação de uma cozinha industrial completa. Isso é ideal para áreas urbanas ou locais com espaço limitado, onde a construção de uma estrutura convencional poderia ser difícil ou inviável.

Reutilizar containers existentes é uma prática sustentável, reduzindo o desperdício e a necessidade de novos materiais de construção. Além disso, muitos containers são feitos de materiais recicláveis e podem ser adaptados para serem energeticamente eficientes.

Se você precisa de uma solução de curto prazo, alugar uma cozinha em container é uma opção ideal. É possível configurar rapidamente a cozinha e, quando não for mais necessária, desmontá-la e remover o container com facilidade.

O que Fornecemos?

Planejamos o Layout

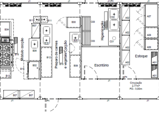
Para garantir uma excelente operação, é crucial planejar o layout da cozinha com eficiência. Isso envolve posicionar os equipamentos de forma estratégica para otimizar o fluxo de trabalho e maximizar o uso do espaço disponível.

Equipamentos Adequados

Fornecemos equipamentos que são eficientes e adequados ao espaço. Isso pode incluir fogões, fornos combinados, geladeiras, sistemas de exaustão e outras soluções que atendam às suas necessidades específicas.

Instalações Elétricas e Hidráulicas

Nossos containers estão adequadamente equipados com sistemas elétricos e hidráulicos mediante ao projeto definido previamente.

Atendimento a Normas de Segurança e Regulamentações

Temos uma estrutura que atende às normas de segurança locais e outras regulamentações pertinentes.

Mobilização e Instalação

Ofertamos uma solução completa, portanto consideraremos a mobilização e instalação da estrutura facilitando o processo de implantação.

Manutenção

Eventuais reparos nos containers poderão ser realizados com facilidade, uma vez que desenvolvemos o projeto para que as manutenções preventivas ou corretivas sejam feitas com tranquilidade.

Projetos

Nossos Projetos Realizados

Solicite

Solicite seu Orçamento